

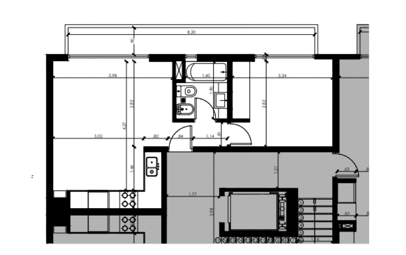
The photo presents a meticulously designed floor plan of a neo-futuristic apartment complex, characterized by clean lines and a sleek, efficient layout. The apartment measures 8.20 meters in width, providing a spacious living arrangement. Upon entry, the main door leads into a contemporary, open-concept kitchen equipped with modern appliances arranged efficiently to maximize space. Adjacent to the kitchen, a sizable living area is designed, allowing for ample light and open-floor ambiance. The living space connects seamlessly to two distinct rooms—each outlined with precise measurements—offering flexibility for usage as bedrooms or workspaces. The floor plan also includes dual bathrooms, strategically positioned for easy access. A series of storage solutions are embedded within the apartment structure, reflecting the neo-futuristic emphasis on minimalism and functionality. Architectural features like sliding doors and integrated shelving are subtly indicated, enhancing the modern aesthetic. The adjacent building infrastructure, including staircases and elevator space, is designed with accessibility and seamless integration in mind, completing the vision of a futuristic, yet practical living space.