ReRender

Maison individuelle,
Élégance Internationale
Originale
Source Image
Importée
Générée(768x1088)
source
3.87%
Result Images

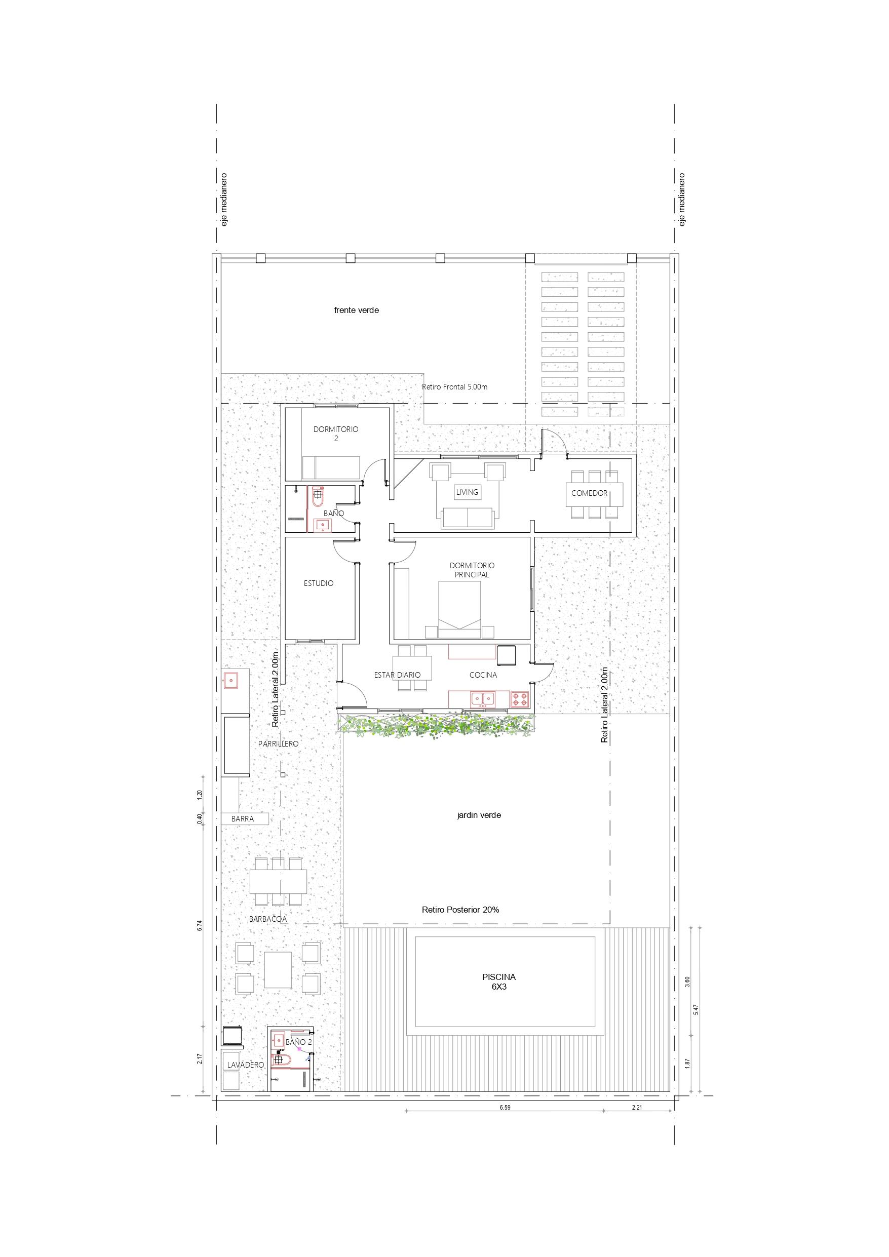
An incredibly lifelike, richly detailed, photorealistic aerial floor plan photo of a modern, single-family home designed in a sleek international style. The scene is illuminated by bright, natural daylight, creating a clear and airy atmosphere. Captured with a high-definition drone camera, emphasizing precise architectural lines and spatial organization. The composition presents the entire house on a slightly elevated plane, showcasing its rectangular footprint. Inside, distinct rooms are outlined: a welcoming "Living" area adjacent to a "Comedor" (dining room), a primary "Dormitorio Principal" (master bedroom), a secondary "Dormitorio" (bedroom), a "Baño" (bathroom), a "Estudio" (study), and a "Cocina" (kitchen) that opens onto a dining area. The exterior features a "Frente Verde" (green front) with neatly arranged rectangular shapes, suggesting parked vehicles or planters. The rear of the property boasts a generous "Jardin Verde" (green garden) leading to a "Piscina 6x3" (6x3 pool) surrounded by a wooden deck, complete with outdoor dining furniture and a barbecue area ("Parrillero" and "Barra"). Detailed measurements are subtly indicated alongside walls and setbacks, providing a sense of scale. The textures are implied through subtle stippling and linework, hinting at paved areas, gravel, and well-maintained greenery, all contributing to the sophisticated and functional design of this private residence.


Use the extensionSketchUp
Follow usInstagramYouTubeLinkedIn
Join the discussionReddit