ReRender

Condominium,
Éco-futurisme
Originale
Source Image
Importée
Générée(768x1088)
source
1.38%
Result Images
Result Images
Result Images

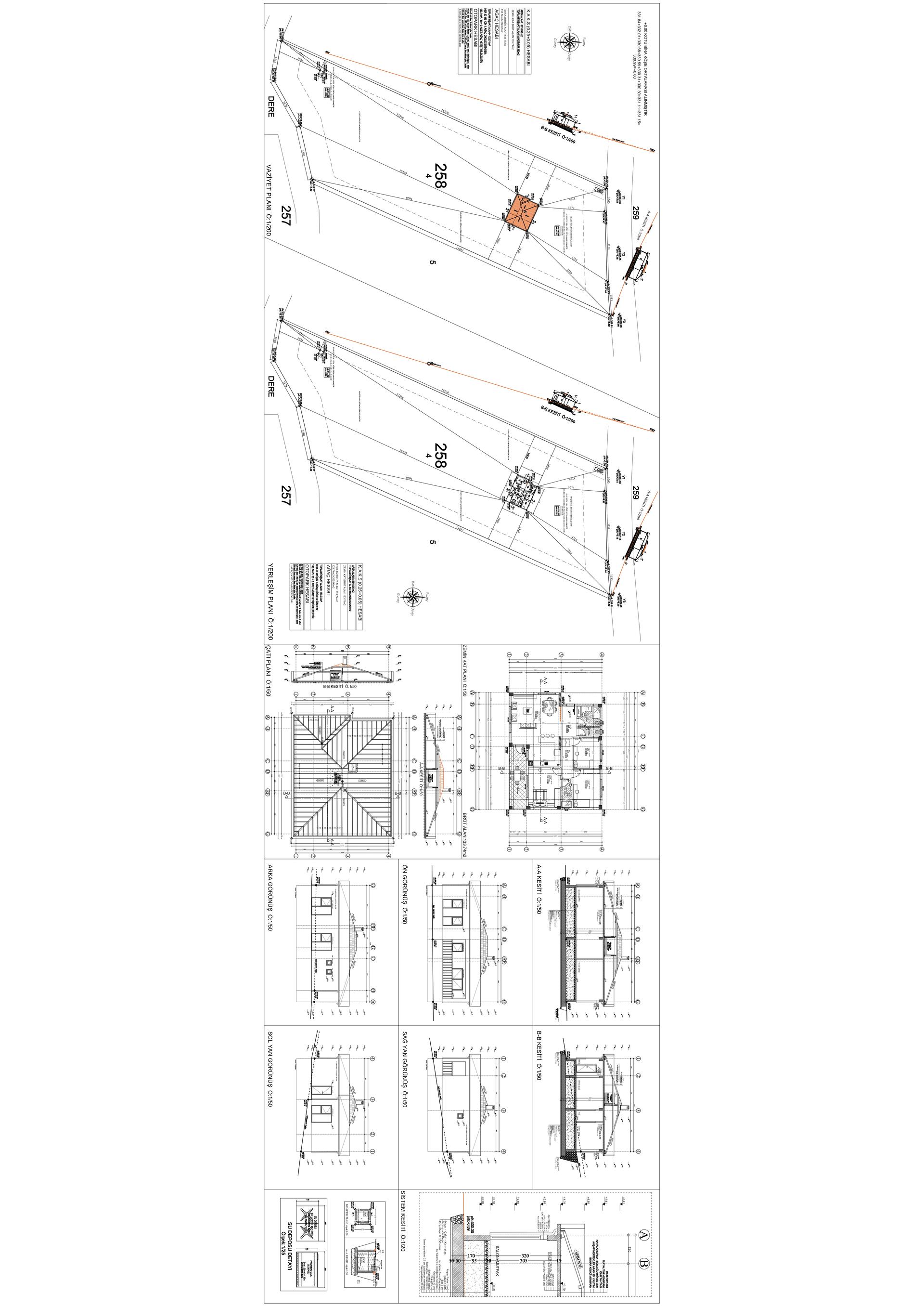
An incredibly lifelike, richly detailed, photorealistic floorplan photo of several condominium units rendered in an eco-futurism style, set within a meticulously planned architectural schematic. The scene is illuminated by a bright, analytical light that casts sharp shadows, highlighting the precise lines and intricate details of the blueprints, creating a clean and informative atmosphere. Captured with a high-resolution, wide-angle lens, emphasizing the complex layout and spatial relationships between the dwelling units. The composition showcases multiple perspectives of the condominiums, including aerial views of plot layouts with designated building envelopes, detailed floor plans revealing interior divisions and features, and elevation views that hint at sustainable design elements. Textures are suggested through varying line weights and hatching patterns, implying materials like polished concrete, sustainable wood, and abundant natural light. The background is a minimalist context of technical drawings and annotations, typical of architectural documentation, with a subtle nod to a digitized, environmentally conscious future through the stylized representation of greenery and energy-efficient design.


Use the extensionSketchUp
Follow usInstagramYouTubeLinkedIn
Join the discussionReddit