ReRender

Maison individuelle,
Déconstructivisme Dramatique
Originale
Source Image
Importée
Générée(1840x768)
source
3.12%
Result Images
Result Images

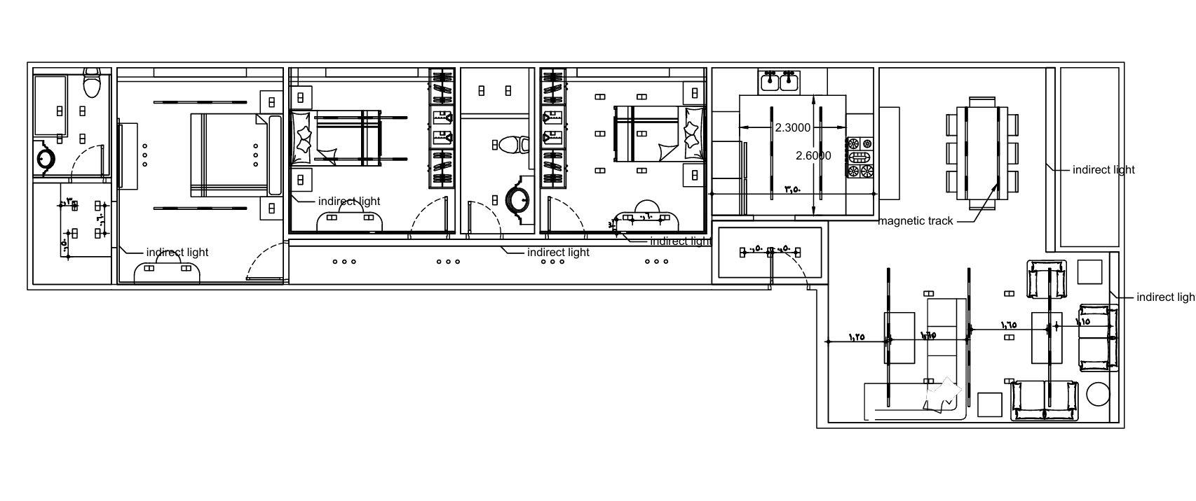
An incredibly lifelike, richly detailed, photorealistic floorplan photo of a luxurious single-family home designed in a dramatic deconstructivist style, as if captured at night during a clear summer evening. The scene is illuminated by a soft, diffused interior lighting, creating a sophisticated and inviting atmosphere, with subtle outdoor ambient light hinting at a serene countryside setting through unseen expansive windows. Captured from a high aerial perspective, the photograph meticulously showcases the intricate layout of the L-shaped structure, emphasizing clean lines and dynamic spatial arrangements. The spacious master bedroom, complete with an en-suite bathroom and dressing area, occupies the far left, leading into two additional bedrooms, each with its own closet space and access to bathrooms. The central section reveals a modern kitchen with double sinks and ample counter space, adjacent to a formal dining room featuring a large table and seating for eight. Further into the layout, a cozy living area with plush seating arrangements and accent furniture is depicted, conveying a sense of refined comfort. The deconstructivist elements are subtly present in the unexpected angles and the interplay of solid and void spaces, all rendered with photo-realistic detail, showcasing the imagined textures of polished concrete floors, rich wood cabinetry, and soft upholstered furniture, with a subtle depth of field that draws the eye through the interconnected living spaces.


Use the extensionSketchUp
Follow usInstagramYouTubeLinkedIn
Join the discussionReddit