ReRender

Entrepôt,
Élégance Internationale
Originale
Source Image
Importée
Générée(1504x768)
source
4.39%
Result Images

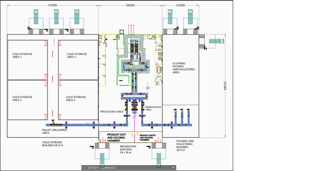
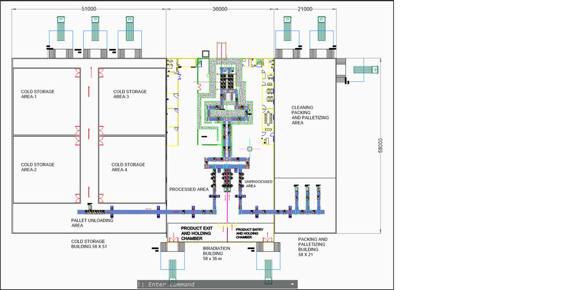
An incredibly lifelike, richly detailed, photorealistic floorplan photo of a modern industrial facility set in a warehouse environment. The scene is illuminated by bright, even midday lighting, creating a functional and organized atmosphere. Captured with a high-angle perspective, emphasizing the sleek, international design of the layout, the photograph showcases a large, interconnected space. To the left, four expansive cold storage areas are clearly delineated, with parallel corridors suggesting efficient movement. In the central and right sections, a complex network of processing, cleaning, packing, and palletizing areas unfolds, featuring rows of machinery and conveyor belts that hint at a bustling operation. The overall image conveys a sense of scale and streamlined efficiency, with clear pathways and distinct zones for various stages of production.


Use the extensionSketchUp
Follow usInstagramYouTubeLinkedIn
Join the discussionReddit