ReRender

Université,
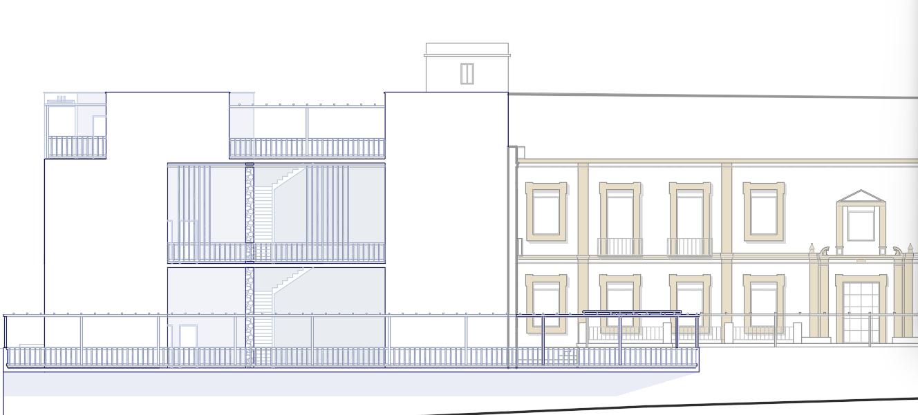
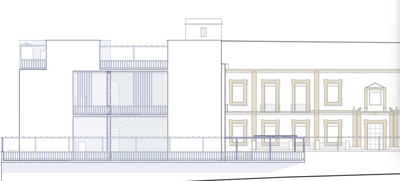
Ferme Industrielle
Originale
Source Image
Importée
Générée(1704x768)
source
2.88%
Result Images
Result Images
Result Images

An incredibly lifelike, richly detailed, photorealistic architectural shot of a pre-existing hacienda-style building and a modern student residence. The hacienda, bathed in the soft, diffused light of a cloudy midday summer, stands with its textured, cement-rendered white walls punctuated by warm, sun-baked yellow mouldings and traditional wooden-framed windows. Adjacent to it, the student residence, a striking structure primarily crafted from light-toned wood, boasts numerous balconies and pergolas that are artfully draped with lush, verdant vegetation, creating a vibrant contrast. Delicate wooden louvers add further architectural detail, while two sturdy pillars of natural stone masonry anchor the composition at the center. The surrounding environment teems with the lively atmosphere of university life, hinting at students moving about, completing the scene with a sense of youthful energy. Captured with a wide-angle lens, emphasizing the interplay of rustic and contemporary architectural styles and the rich textures of wood, stone, and aged cement, the photograph presents a balanced composition with a high degree of focus on the intricate details of both structures and their integration into the academic setting.


Use the extensionSketchUp
Follow usInstagramYouTubeLinkedIn
Join the discussionReddit