ReRender

Usine,
Ferme Industrielle
Originale
Source Image
Importée
Générée(1224x768)
source
0.02%
Result Images
Result Images
Result Images

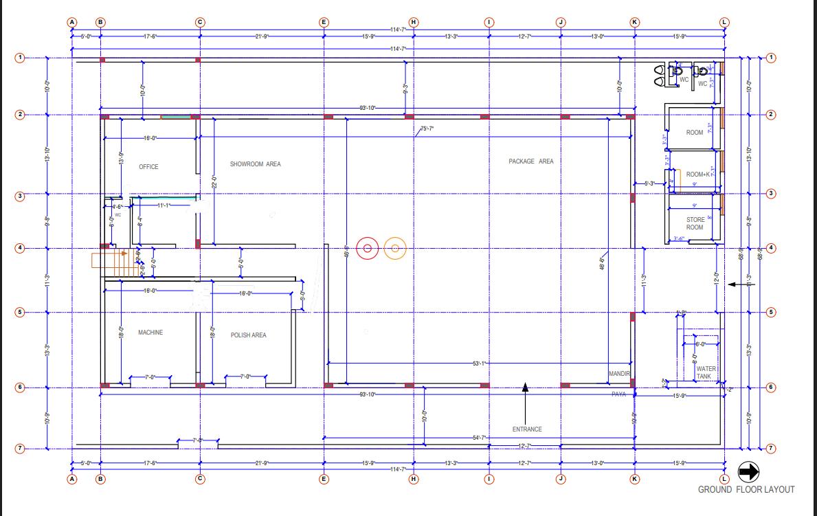
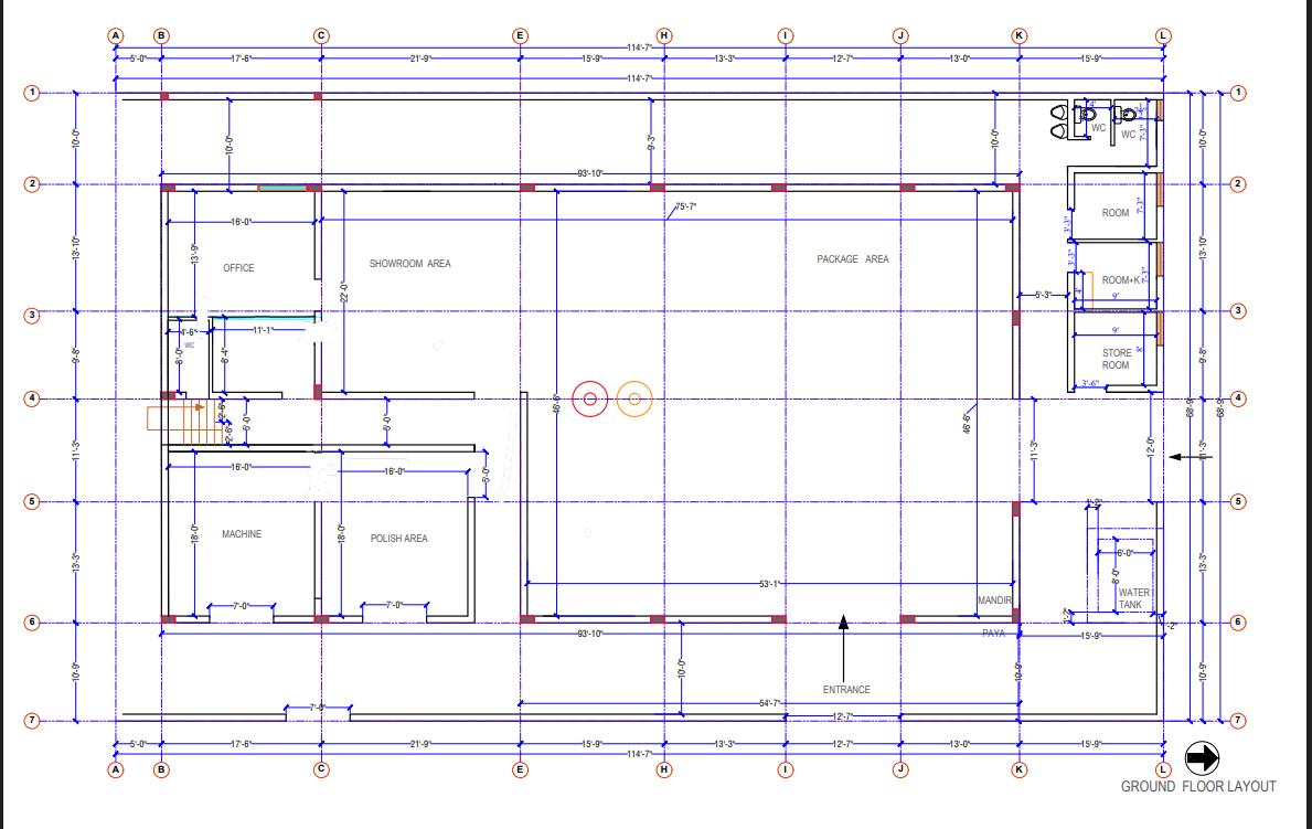
An incredibly lifelike, richly detailed, floorplan photo of a factory with industrial farmhouse elements. Impeccably organized and vast, the photograph captures the ground floor layout of a large building. The scene is illuminated by bright, even overhead lighting, creating a clean and functional atmosphere. The composition is a top-down, architectural view, with clear, crisp lines defining rooms labeled "OFFICE," "SHOWROOM AREA," "PACKAGE AREA," "MACHINE," "POLISH AREA," "STORE ROOM," and "WATER TANK." Subtle textures suggest durable concrete floors and sturdy metallic structural elements. In the distance, a clear entrance is marked, hinting at the flow of operations within this industrious space. The perspective is that of an elevated drone shot, offering a comprehensive and precise overview of the entire floor.


Use the extensionSketchUp
Follow usInstagramYouTubeLinkedIn
Join the discussionReddit